Olof Palmes Allé - 8200, Aarhus N UngdomsboligAarhus
Journalisten
Olof Palmes Allé, 8200 Aarhus N

Udlejes pr. 15-12 2025

Det er ikke muligt at besigtige boligen da den stadig er under opførelse.

Du skal være logget ind, for at kunne søge dette lejemål.

Login
4.132,- /md
1 vær. lejl.
HUSLEJE
Leje:
3.932,00 kr.
Antenne:
0,00 kr.
* El:
0,00 kr.
* Vand:
0,00 kr.
Varme:
200,00 kr.
Månedlig:
4.132,00 kr.
* Se øvrige udgifter under afdelingsbeskrivelsen
VED INDFLYTNING
Forudbetalt:
0,00 kr.
Indskud:
22.000,00 kr.
Depositum:
0,00 kr.
Første måneds husleje:
4.132,00 kr.
Ialt:
26.132,00 kr.
FACILITETER
Internet:
Tilmelding og betaling direkte til leverandør. Yousee har lagt kabel ind, andre kan også vælges.
Vaskeri:
Betalingsvaskeri
Fælles faciliteter ude:
Cykelparkering (kælder og terræn)
Mulighed for leje af p-plads gennem Apcoa
Grønt gårdrum
Fælles drivhus
Lille legeplads
Fælles faciliteter inde:
Fællesrum i blok B
(bliver indrettet i efteråret 2025 i samarbejde med beboerne)
Fælles tagterrasser
Fælles depotrum for større genstande
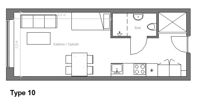
LEJEMÅLSBESKRIVELSE
Størrelse:
41.9 m2
Antal rum:
1
Køkken:
Eget køkken
Der er kogeplade, ovn, emhætte samt køleskab med fryseboks.
Derudover er der mulighed for tilslutning af opvaskemaskine.
Badeværelse:
Eget bad og eget toilet
Træ samt klinker på badeværelset
Husdyr:
Ikke tilladt
Inventar:
Indbyggede skabe i entre
Supplerende oplysninger:
Der er en lille terrasse til nogle af boligerne i stuen.
Der er ikke altaner til ungdomsboligerne.
Der er elevator i bygningen.
Letbanen og bus 6A mod centrum stopper i nærheden.
Der er gå og cykelafstand til bl.a. Aarhus Tech, Aarhus Akademi og Uni.
Der er flere forskellige indkøbsmuligheder tæt på, samt udeaktiviteter i Vestereng,
og mange kulturelle tilbud.
AFDELINGSBESKRIVELSE
Afdeling:
Journalisten
Beliggenhed:
Olof Palmes Allé 11 L + M + T
8200 Aarhus N
Område:
Nord
Indstilling:
Kollegiekontoret Aarhus, tlf. 86 13 21 66
Administration:
Østjysk Bolig / Lejerbo
Katrinebjergvej 107,
8200 Aarhus N
Tlf. 70121310
Mail: aarhus@lejerbo.dk
Oestjyskbolig.dk / Lejerbo.dk
Antal boliger:
300 stk. 1-vær. lejligheder
Yderligere info:
Rygning er ikke tilladt på indearealer.
Ved rygning udenfor skal der tages hensyn til de øvrige beboere.
Arealerne er vejledende og inkluderer fællesområder.
Aconto beløb er vejledende.
Øvrige udgifter:
Varme er inkluderet i huslejen og betales a conto.
Forbrug af vand og el betales direkte til leverandøren.